Dự Án KHU DÂN CƯ PHÚ THUẬN

Tổng Quan

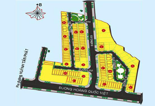
Tổng diện tích: 3,3 ha

Vị trí: Đường Hoàng Quốc Việt, Phường Phú Thuận, Quận 7, TP.HCM

Quy mô: 119 nhà liên kế , diện tích 61.8 -137.5m2

                 37 nhà biệt thự , diện tích 140 – 669m2

Tiến độ: Đã bàn giao sổ đỏ cho khách hàng

pic

pic

Vị Trí

Khu dân cư Phú Thuận tọa lạc tại đường Hoàng Quốc Việt, Phường Phú Thuận, Quận 7, TP.HCM

pic

Thanh Toán


Thư Viện

HÌNH THỰC TẾ

pic

Liên Hệ

Địa chỉ: Tầng 2, Toà nhà Tulip, Số 15 Hoàng Quốc Việt, Phường Phú Thuận, Quận 7, Thành phố Hồ Chí Minh.

Điện thoại: (028) 3785 0011 – (028) 3785 8888 - (028) 3785 0999


CÔNG TY CỔ PHẦN VẠN PHÁT HƯNG